Hermandad de Nuestra Señora del Rocío de Sevilla Sur

Información sobre el proyecto del nuevo local

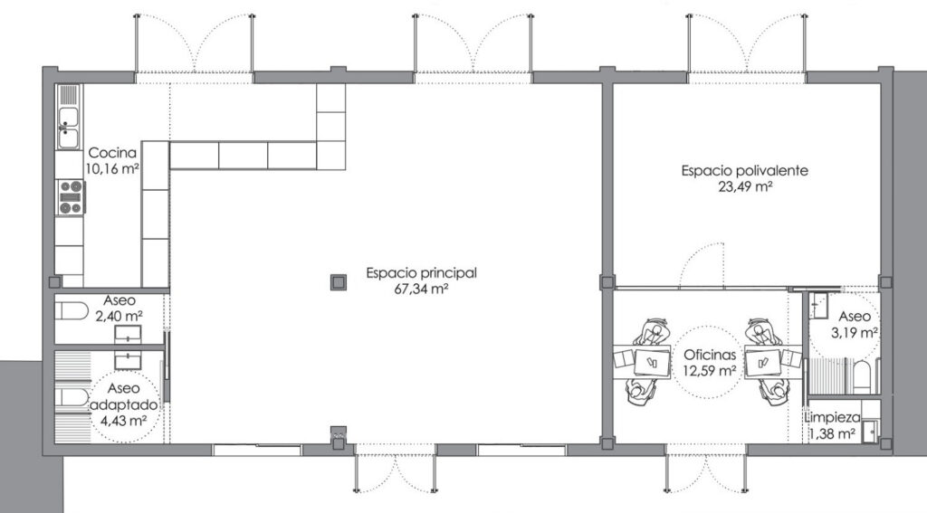
Queremos informaros de que hemos tenido que realizar algunos ajustes en el proyecto inicial del local de nuestra Hermandad. Estos cambios responden a un nuevo planteamiento por parte de Emvisesa respecto a los locales, lo que nos ha llevado a adaptar nuestro proyecto a las nuevas condiciones establecidas.

Contamos con el visto bueno de nuestra hermana Adelina Palacios, arquitecta responsable del proyecto, quien ha revisado y aprobado las modificaciones realizadas.

Os enviamos adjunto el nuevo proyecto para que podáis conocer en detalle los cambios y estar al tanto de esta nueva etapa que emprendemos juntos.

Agradecemos, como siempre, vuestro apoyo, comprensión y cariño hacia todo lo que hacemos por el bien de nuestra Hermandad.

Scroll al inicio